tj45平现代简约风,终于住进了小户型的理想家!

设计理念

——

  • 案例风格
  • 现代简约
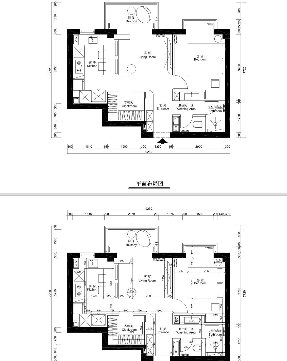
  • 案例户型
  • 二居室
  • 案例面积
  • 67
  • 案例造价
  • 10万
  • 楼盘名称
  • 设计师

10秒出装修报价

今日已有17人报价成功
算算我的家装多少钱?
免费发送到手机
  • 张先生报价成功139xxxxx547面积120㎡
  • 王女士报价成功152xxxxx452面积96㎡
  • 李先生报价成功138xxxxx751面积90㎡
  • 刘先生报价成功189xxxxx456面积145㎡
  • 兰先生报价成功139xxxxx278面积98㎡
  • 袁女士报价成功139xxxxx568面积99㎡
  • 唐先生报价成功187xxxxx475面积140㎡
  • 孙先生报价成功139xxxxx278面积150㎡
  • 姚先生报价成功152xxxxx422面积132㎡
  • 罗女士报价成功147xxxxx843面积120㎡
  • 史先生报价成功139xxxxx723面积120㎡
  • 陈先生报价成功139xxxxx745面积120㎡
  • 蔡先生报价成功152xxxxx735面积134㎡
  • 懂先生报价成功188xxxxx225面积126㎡
  • 郭女士报价成功133xxxxx710面积124㎡
  • 付先生报价成功159xxxxx756面积145㎡

免费量房

DECORATE A BUDGET
预约量房

报名样板间装修

DECORATE A BUDGET
我要报名

5秒获取装修报价

DECORATE A BUDGET
获取报价

预约设计师

APPOINTMENT DESIGNER
立即预约